Projet Toulouse

Informations du projet

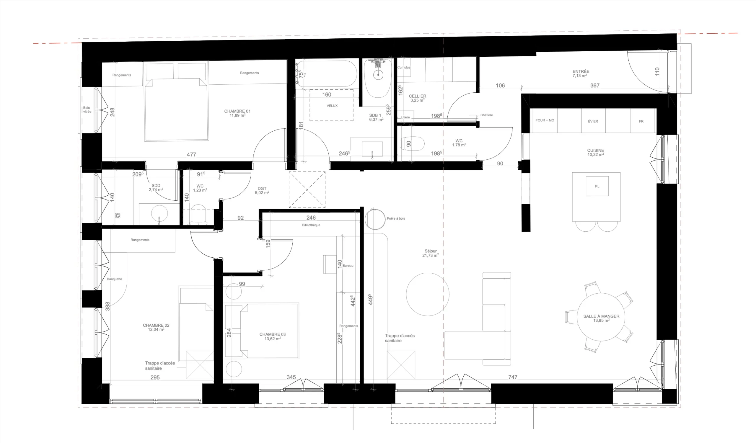
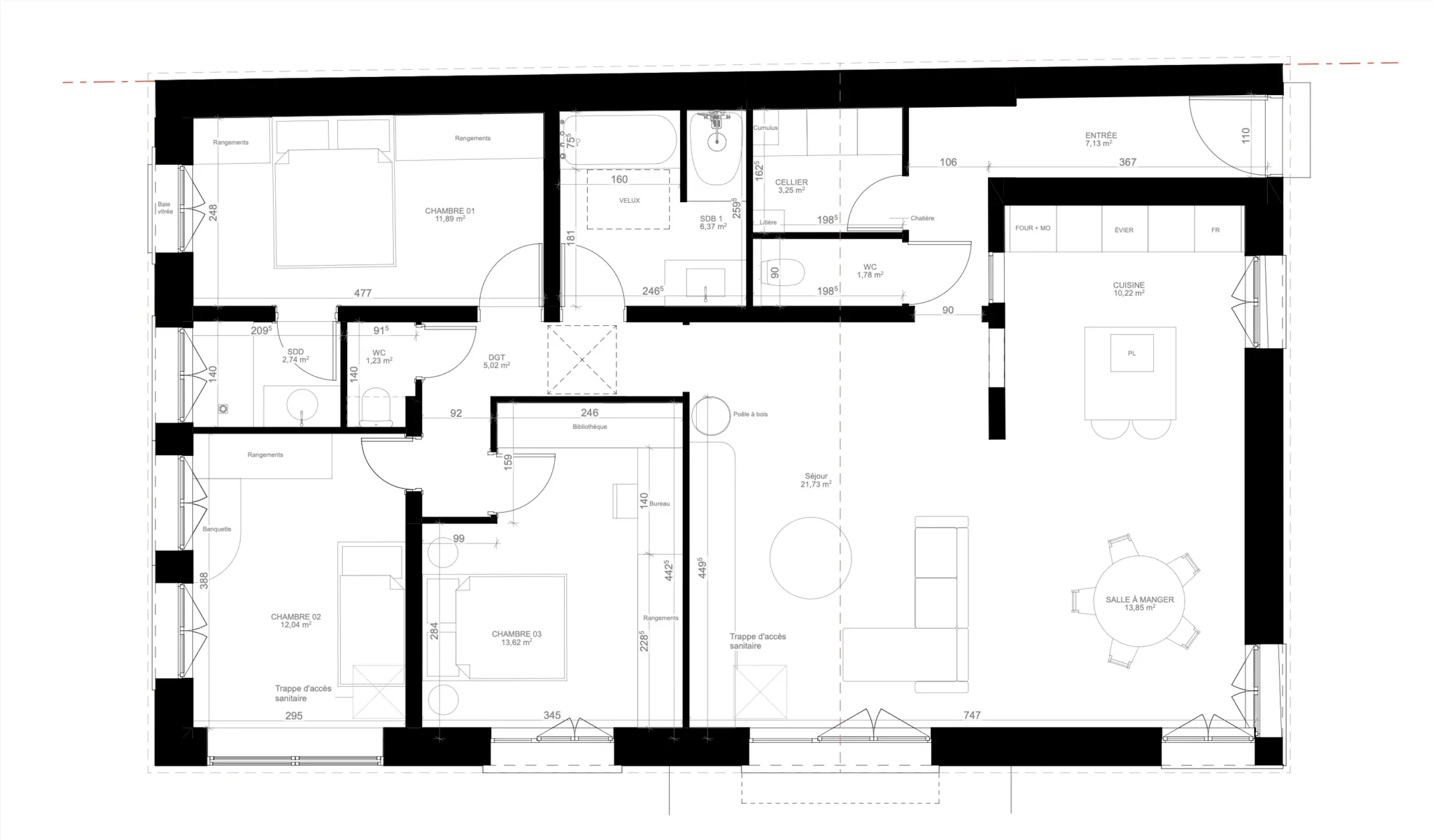
Cette rénovation complète d’une maison individuelle Toulousaine a été pensée pour une famille en quête d’un intérieur à la fois fonctionnel, chaleureux et singulier. Le projet a consisté à réinventer totalement les espaces, en optimisant la lumière naturelle et les volumes, tout en donnant une identité forte à chaque pièce.

Type de projet

Conception Intérieure

Toulouse

Loudenvielle

Date du projet

2025

collaboration

Easy Chantier

DESCRIPTION DU PROJET

Le concept intérieur s’inspire d’un style rétro revisité dans une version contemporaine : des lignes graphiques associées à des couleurs profondes, des matériaux naturels mis en valeur par des détails modernes, et des choix décoratifs assumés qui confèrent à la maison une véritable personnalité.

Chaque espace raconte une histoire entre héritage et modernité, donnant naissance à un intérieur élégant, intemporel et sur-mesure. Cette transformation illustre pleinement la force de l’architecture intérieure lorsqu’elle conjugue design, confort et optimisation de l’espace.

De la cuisine au salon, des chambres aux espaces de travail, tout a été pensé pour refléter le mode de vie de ses habitants, dans une cohérence esthétique qui allie esprit rétro, touches contemporaines et élégance familiale. 

RETROUVEZ MON UNIVERS

Suivez mes inspirations quotidiennes, les coulisses de mes chantiers et la livraison de mes derniers projets.