Projet Saint-Jean

Informations du projet

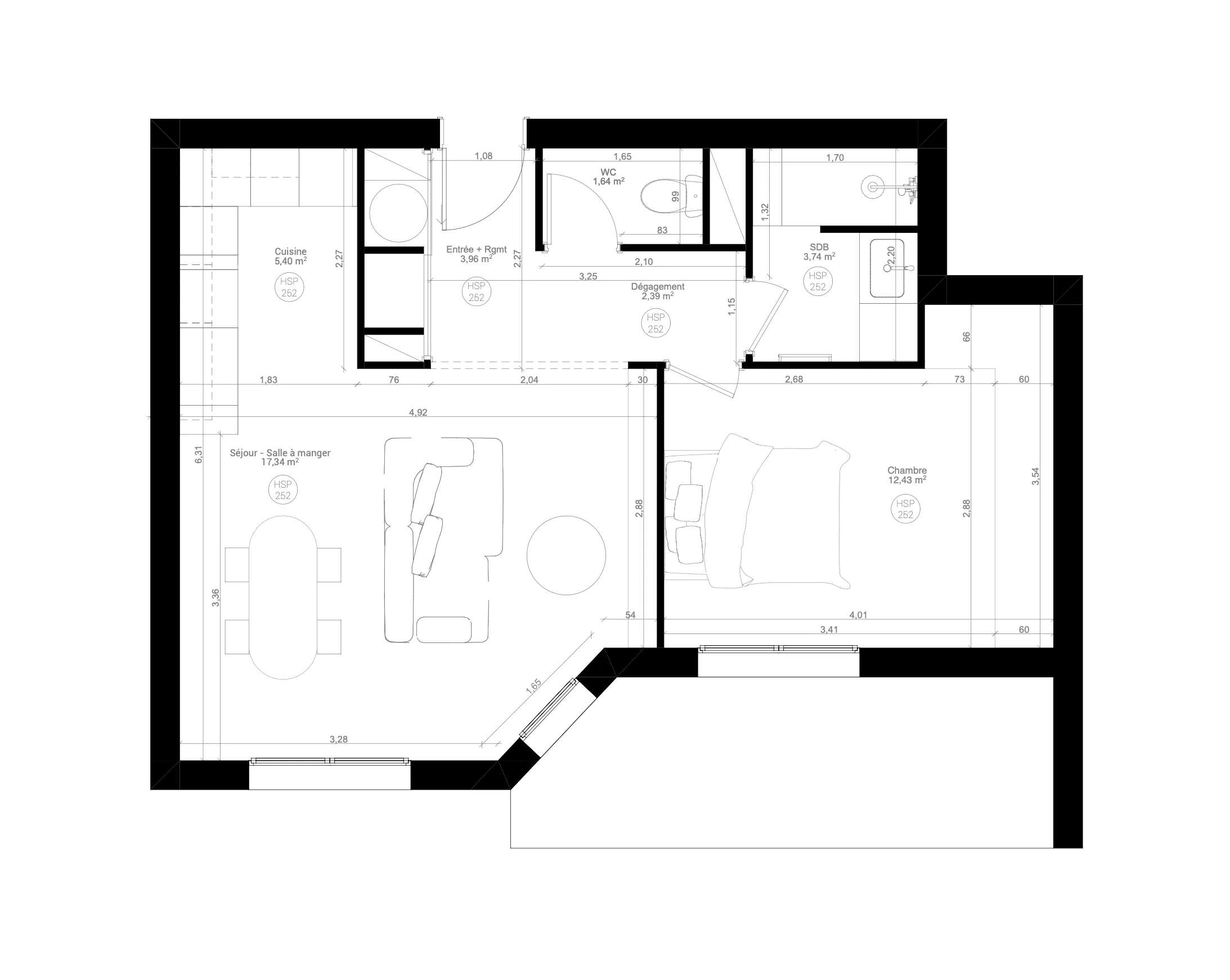
Ce projet concerne la rénovation complète d’un appartement deux pièces situé à Saint-Jean en banlieue Toulousaine. L’objectif était de concevoir un intérieur fonctionnel, esthétique et optimisé, tout en respectant une contrainte budgétaire liée à sa destination locative.

Type de projet

Rénovation

Localisation

Saint-Jean

Date du projet

2025

collaboration

Arnaud Biehler Studios

DESCRIPTION DU PROJET

Pensé pour séduire de futurs occupants, l’appartement combine aménagements pratiques, espaces fluides et choix de matériaux accessibles mais qualitatifs, garantissant un résultat à la fois moderne, durable et économique.

Chaque détail a été réfléchi afin de maximiser les surfaces de rangement, améliorer la luminosité et donner une véritable identité à ce logement de 45 m².

Cette étude illustre parfaitement le rôle de l’architecture intérieure dans la valorisation d’un bien immobilier destiné à la location : une rénovation bien pensée permet non seulement de réduire les coûts, mais aussi d’assurer un retour sur investissement grâce àun intérieur attractif et fonctionnel.

RETROUVEZ MON UNIVERS

Suivez mes inspirations quotidiennes, les coulisses de mes chantiers et la livraison de mes derniers projets.